好像很多間,都有發霉的問題也~~
沒有買除濕機也, 要不要去買??
warren6648 發表於 2011-3-7 15:44 
回覆 可可的爹 的文章
講到濕氣重~
濕氣重雖然是原因,不過如果常開窗通風,應該就比較好一點。
回覆 可可的爹 的文章
這邊冬天潮濕 新房子一開始濕氣也較重
所以偶而都要開一下除濕機才行
(可是看大家說的樣子 我是不是也該檢查一下我家是否發霉!?)
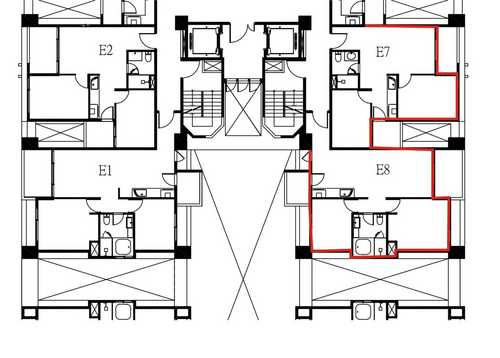
🔧 本文章最後由 掠食者 於 2011-3-7 18:13 編輯
請各位牆壁發霉的住戶請確認一件事
你家會發霉的牆,是不是都是"外牆"?
不管牆的另一側有沒有陽台~雨遮,只要是有機會吹風淋雨曬太陽的都算外牆
上圖中,紅線的部分就是外牆
看得懂的人就知道我在說什麼{:4_195:}
回覆 掠食者 的文章
我的是外牆沒錯 後陽台的窗戶旁 從磁磚的縫隙中長霉
🔧 本文章最後由 毛兒 於 2011-3-7 22:58 編輯
掠食者 發表於 2011-3-7 18:13 
請各位牆壁發霉的住戶請確認一件事
你家會發霉的牆,是不是都是"外牆"?
不管牆的另一側有沒有陽台~雨遮, ...
我看得懂耶~
這張好熟悉的教學圖又重出江湖啦~~{:4_196:}
回覆 毛兒 的文章
毛姐~這張圖可是全新製作的好唄~
只是跟之前一樣都有拿我的E8來當範本
不過那都不是重點
重點是.....
工務講話要憑良心啊...嘿嘿嘿.....{:4_139:}
提到外牆 , 想起去年九月(還是十月) 下一場大雨 , 很多戶後陽台都有滲水問題 , 建商當時回應是有在處理中.. 並說了考慮在每棟樓最高的地方加裝雨遮...或者其它的方法,,,
但又來呢?? 好像沒有下文了 ?
不知有沒有人知道結局是什麼
回覆 fumihiro_yu 的文章
將CHT的Modem裝在 Router 的 WAN Port
然後透過你房間的電腦 ,在 IE 的網址列打 192.168.0.1 ,
就可以進入管理 Router 的管理頁面了 , 然後在輸入偽光纖的帳號密碼應該就行了
回覆 Nathan 的文章
陽台滲水...我也不知道處理了沒~
不過去年的那場大雨過後~真正的核心問題不是陽台滲水{:4_163:}
也為了這真正的核心問題~建商在屋頂增設你說的雨遮
這個部分倒是處理好了~你上屋頂就會看到幾處小天井上都有蓋一個金屬小雨遮
那小雨遮真是做得十分精美~但也十分腦殘.....{:4_111:}
腦殘的點在哪...有空我再來做個圖文並茂的分析~{:4_175:}
🔧 本文章最後由 浪味仙 於 2011-3-8 01:16 編輯
回覆 掠食者 的文章
上圖中,紅線的部分就是外牆
略大你的 E8 全都是外牆呀,有一種風雨飄搖的感覺 @@
浪味仙 發表於 2011-3-8 01:11 
回覆 掠食者 的文章
對呀~浪大~很酷吧~{:4_170:}
目前是三面採光~如果建商瘋狂一點~還可以做到四面採光ㄝ{:4_111:}
少見吧~{:4_164:}
那天有聽工務說 雨遮做好了
下次會注意看一下"精美小雨遮" {:7_456:}
第 3000 人即將出現,這次該在 DUBU 擺一攤了吧.. {:4_163:}
浪味仙 發表於 2011-3-8 10:16 
第 3000 人即將出現,這次該在 DUBU 擺一攤了吧..
這樣沒人敢回文怎麼辦{:4_87:} {:4_184:}
第 3000 篇請 DUBU !!!
第 3000 篇請 DUBU !!!
第 3000 篇請 DUBU !!!
第 3000 篇請 DUBU !!!
第 3000 篇請 DUBU !!!
{:5_273:} {:5_273:} {:5_273:} {:5_273:} {:5_273:}
第 3000 篇請 DUBU !!!
第 3000 篇請 DUBU !!!
第 3000 篇請 DUBU !!!
第 3000 篇請 DUBU !!!
第 3000 篇請 DUBU !!!{:4_164:}
第 3000 篇請 DUBU !!!
第 3000 篇請 DUBU !!!
第 3000 篇請 DUBU !!!
第 3000 篇請 DUBU !!!
第 3000 篇請 DUBU !!!
第 3000 篇請 DUBU !!!
第 3000 篇請 DUBU !!!
第 3000 篇請 DUBU !!!
第 3000 篇請 DUBU !!!
回覆 掠食者 的文章
過3000了可以回覆了{:4_87:}
沒錯是外牆長黴,而且相對外面就是那根柱子
所以當時有聯想到之前其他鄰居說的下雨後水滲入牆壁中,在滲入家中
不過那時工務安慰我們說,我們家在5樓要多豐沛的水量才流得到
看來是夠豐沛了{:4_202:}
這樣我們應該可以請他連油漆也幫忙補了
回覆 傑特 的文章
這個話題改到家族討論比較好
不過我還是想叫工務去吃屎
同樣的問題,以前不確定說是室內濕氣就算了
都爆過一次了還說是室內濕氣,這種駝鳥心態實在要不得{:4_95:}
北大這裏的建案好像都喜歡開燈,顯示外觀美奐無比,但有需要開整晚至凌晨?
對啦 到家族內開會 我改天也去把家裡發霉的地方拍個照放上來,大家一起研究看看如何處理
回覆 Nathan 的文章
在R樓建商已有加裝,當時假日看到工人在切割以為是要檔冷氣被雨水潑,原來是有其它問題喔
最近板橋家我的臥室牆壁靠近窗戶邊竟然長出黴菌....{:4_99:}
不知道是當初天氣太冷關窗戶好幾個月沒讓空氣氣流流通的關係嗎!!
還是以前樓上住戶冷氣排水管線貼在外牆上水沿著外牆往下流造成的呢??
畢竟窗戶上的鐵窗已經生鏽,而且只有這個鐵窗生鏽,生鏽確定是樓上造成的...{:5_257:}
回覆 fumihiro_yu 的文章
交屋的內容就有含建商附的路游器使用說明
除非你是搭BB寬頻 不然應該照說明去設定即可使用拉
回覆 傑特 的文章
回去給他找一下說明書
不知道丟哪裡了
最近都沒時間處理網路的事
然後中華電信當初也很扯
說新申裝戶要送我什麼室內無線分享器1年
結果工程師來裝網路時 居然說他沒有收到這個訊息
過幾天打電話過去問
他們說我當初要填一張單子(for室內無線分享器)
當初幫我辦的大姐 並沒有要我填單阿(可能忘了??)
結果她又要我跑一趟營業所
想一想還是算了、哪有時間一直請假辦這種事阿
7點下班、回到家都8點半了@@
前天晚上要去7-11買東西,經過摩斯漢堡旁人行道時令我傻眼,靠近橘果子那邊地上竟然到處都是檳榔汁,不曉得現在清掉了沒,摩斯漢堡門口旁人行道上有一台攝影機正對著那個方向應該可以抓到人。
只是無法想像現在竟然還有人會幹這種事,這種事不知道有沒有罰則可用。
回覆 fumihiro_yu 的文章
不然晚上有空找時間來我家, 我教你設定, 這樣比較清楚