所以除了天花板讓朋友施工外,其他的都想自己動手做!
廢話不多說...開始!!
(註:每張照片的說明會在照片下方!)
1.丈量尺寸
第一步當然要知道櫃子要作在哪裡?、尺寸為何?、有沒有需要避開的地方?

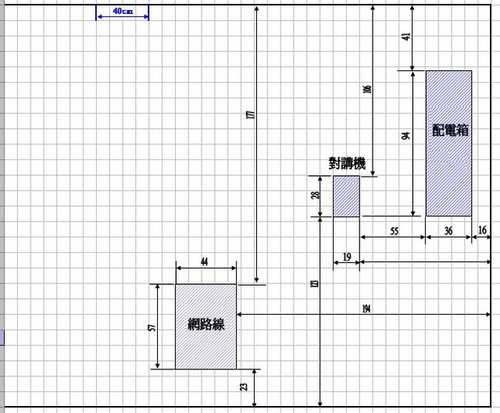
這是要做木櫃牆面的位置,先到現場實際丈量尺寸,這牆面包含a.配電箱、b.對講機、c.網路箱
量好尺寸後再用Excel重新繪製.

根據空間規劃櫃體形式,我規劃四個櫃體(即A、B、C、D).
請特別注意,櫃體大小要儘量控制在市售木芯板規格內(4尺X8尺),且也要注意住家電梯大小可否容下板材.

這是櫃體門板(片)規劃,四個櫃體共18個門板(片)

木櫃當然是要增加收納空間,所以這張是櫃體內部層板的規劃
也是儘量要尺寸相同,因為好施工.
2.尺寸圖繪製
一來為了避免錯誤,二來Excel劃的圖比例不對,所以我又另外手繪尺寸圖(日後兼施工圖)

我已經在各個板材編號,以利日後施工

再來一張特寫,每一片板都有編號喔 !
3.板材裁切
此次用的是已經貼好木紋皮的"波麗板",有分單面、雙面
單面波麗板:用在僅單面可見的部份ex:櫃體上下左右,如上圖B1單(此片靠牆所以用單面),B2單(此面與A櫃相鄰)
雙面波麗板:用在層板位置,exB5~B8

接下來,木櫃要用的正確板材尺寸裁切就靠這鋸台了.這台是朋友借我的.
注意!這鋸台危險性很高,一定要有人教導後才能使用

根據圖面將板材裁切好,並標示編號以利組裝辨識

根據櫃體編號,將板材分類放好.
後記:
1.板材尺寸是根據外觀尺寸裁切,並非組裝尺寸
2.組裝尺寸必須扣板厚,後續會說明.
3.下一篇介紹櫃體組裝.
-----------分隔線------------
接下來是櫃體組櫃體組合時就要考慮尺寸了,
若是以上下尺寸為準,那左右的板材就要扣厚度.
以我的A、B、C櫃為例,我的櫃體高是210cm,即B1、B3板材維持210cm,
那麼B4、B8、B9...等橫向板材就需扣兩倍板材厚度(12分)






















